
QD tipidagi elektr yuk ko'taruvchi kran
Yuk ko'tarish quvvati: 5-450t
Kenglik: 6 m - 31, 5 m
Ko'tarish balandligi: 3m - 60m
Ish vazifasi: A3-A6
Moslashtirilgan xizmat: Ta'minlang
Ishlash harorati: -25 dan 40 darajagacha
Ta'rif
QD tipidagi elektr yuk ko'taruvchi kran Kirish
Reylarda qo'llab-quvvatlanadigan QD tipidagi elektr ko'prikli kran og'irligi 200 t gacha bo'lgan og'ir yuklarni osongina tashishi mumkin. Kran 40 m gacha bo'lgan masofaga ega va maksimal ko'tarish balandligi H=50 m. Kranlar -20 darajadan ortiqcha 40 darajagacha bo'lgan xona / atrof-muhit haroratida ichki va tashqi makonda xizmat ko'rsatish uchun ishlatilishi mumkin. Ushbu turdagi kran gorizontal yuklarga nisbatan yuqori qarshilikka ega. Ikki to'sinli ko'prikli kranlar erdan kabelga ulangan boshqaruv pandanti yoki radio masofadan boshqarish pulti orqali boshqarilishi mumkin.
Kran maxsus xizmat ko'rsatish platformalari, parvarishlash yo'laklari va yordamchi yuk ko'tarish uskunalari bilan ta'minlanishi mumkin. Kranning o'zi portlashdan himoyalangan qurilmalar bilan ishlab chiqarilishi mumkin.
QD tipidagi elektr yuk ko'taruvchi kranning xususiyatlari
Zavod yoki zavod qurish sarmoyangizni kamaytiring.
Ishlab chiqarish samaradorligini oshiring, investitsiyalaringiz uchun ko'proq qiymat yarating.
Turli xil ish sharoitlariga mos keladi va sizga bir martalik echimlarni taqdim etadi.
Yilni dizayn, past bo'shliq, yuqori unumdorlik bilan xavfsizlik.
Kundalik texnik xizmat ko'rsatish, qulay foydalanish va energiya tejashni kamaytiring.
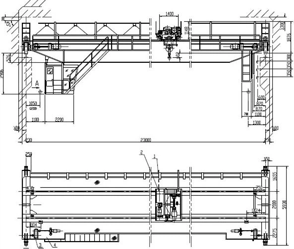
QD tipidagi elektr yuk ko'taruvchi kran chizmasi


QD tipidagi elektr yuk ko'taruvchi kran parametrlari
QD tipidagi elektr yuk ko'taruvchi kran xavfsizligini himoya qilish
Haddan tashqari yuk himoyasi
Favqulodda to'xtash tugmasi
Mandalli ilgaklar
Termal himoya bilan asosiy ko'taruvchi vosita
Kran kaliti va sayohat va tugatish tugmasi
Kauchuk tamponlar
Himoya topraklama
Ob-havo muhofazasi
Paket va yetkazib berish
Standart konteyner qadoqlash
Mijozning talablariga muvofiq
Yetkazib berish muddati to'lovdan keyin 25 kun ichida jo'natiladi
Eslatma
Tez taklif qilish uchun quyidagi ma'lumotlarni to'ldiring:
1. Kranning yuk ko'tarish qobiliyati
2. Ko'tarish balandligi (poldan ilgak markazigacha)
3. oraliq (ikki rels orasidagi masofa)
4. Mamlakatingizdagi quvvat manbai. 380V/50Hz/3P yoki 415V/50Hz/3Pmi?
5. Sizga eng yaqin port
Issiq teglar: qd tipidagi elektr ko'prikli kran Xitoy, ishlab chiqaruvchilar, etkazib beruvchilar, moslashtirilgan, kotirovka, taklif, narx
So'rov yuborish
Sizga ham yoqishi mumkin







